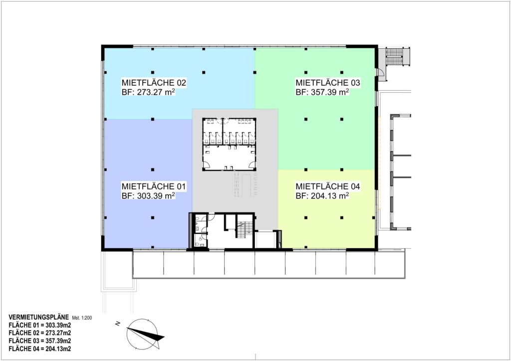
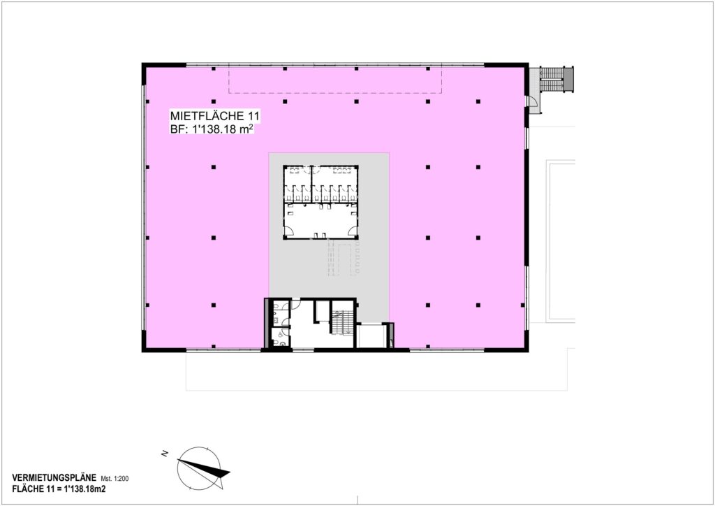
Mietflächen
Flexible Raumlösungen für jede Unternehmensgrösse.
Flexible Büro- und Gewerbeflächen ab 100 m² bis über 1‘100 m². Individuell ausbaubar, modern ausgestattet und nachhaltig im Betrieb.
Flächenangebot im Überblick
Beispielflächen Grundrisspläne
Mietpreise und Konditionen
Preisstruktur
- Kompakte Einheitenab 100 m²
- Erweiterte Flächenab 200 m²
- Komfortable Büroflächenab 300 m²
- Grosszügige Arbeitsplätzeab 400 m²
- Repräsentative Flächenab 500 m²
- Premium-Einheitenab 600 m²
- Exklusive Grossflächenab 700 m²
- Komplette Geschossanmietung1'138 m²
Mietkonditionen Edelrohbau
Ausbauoptionen
Mietbedingungen
Mietpreise
Der Mieter hat die Möglichkeit, eine Ausbauplanung für seine Mietflächen zu beauftragen; die hierdurch entstehenden Kosten
trägt der Mieter.Mehrwertsteuer
Beim Mietobjekt handelt es sich um eine mehrwertsteuerpflichtige Liegenschaft.
Nebenkosten
Sie betragen CHF 20.–/m² (ohne Innenausbau, individueller Ausbau auf Mieterwunsch möglich). Die Stromkosten gehen zu Lasten des Mieters.
Mietfläche
Die Flächen werden im Edelrohbau vermietet (Kabelkanal entlang der Aussenwände, Heizkörper entlang der Aussenwände, Boden/Decke/Wände Beton roh, Fenster, Grundbeleuchtung). Die vorgängig erwähnten Mietzinse beziehen sich auf diesen Ausbaustandard. Weitere Ausbauwünsche werden gegen entsprechenden Aufpreis berücksichtigt.
Vertragsdauer
Die Vertragsdauer kann individuell festgelegt werden. Vorzugsweise wird jedoch eine minimale Laufzeit von 5 Jahren vereinbart.
Parking
Tiefgarage mit komfortabler Zufahrt
Im Zuge des Neubaus wurde eine hochmoderne Tiefgarage mit zeitgemässer Ausstattung realisiert, die höchsten Komfort und Funktionalität bietet. Die besonders breit konzipierte Einfahrt verfügt über eine grosszügige Einfahrtshöhe.
Dank der schwellenlosen Ausführung ohne störende Randsteine oder Absätze ist die Einfahrt ausserordentlich komfortabel und sicher – sowohl für Personenwagen aller Grössen wie auch für Lieferwagen und andere Nutzfahrzeuge. Der praktische direkte Zugang ins Gebäude erfolgt bequem ebenerdig über die Ebene 0, was einen vollständig barrierefreien und witterungsgeschützten Übergang zwischen Tiefgarage und Gebäude ermöglicht.
Für Besucher und Gäste stehen zusätzliche Parkmöglichkeiten im gepflegten Aussenbereich zur Verfügung.
Ein Stellplatz ist ab CHF 1‘800.– pro Jahr (CHF 150.– pro Monat) erhältlich.

Starten Sie durch in Hochdorf
Jetzt die passende Mietfläche sichern
Gestalten Sie Ihre neue Arbeitsumgebung im Suter Gewerbepark Hochdorf. Fordern Sie unverbindlich weitere Informationen an oder vereinbaren Sie einen Besichtigungstermin.





