Projekt
Ein Gewerbepark, der Arbeit, Innovation und Nachhaltigkeit verbindet.
Der Suter Gewerbepark Hochdorf vereint moderne Architektur, nachhaltige Gebäudetechnik und flexible Arbeitsräume für Unternehmen mit Zukunft.
Projektüberblick
Am Dorfeingang von Hochdorf entsteht bis Ende 2025 ein moderner Gewerbepark mit über 7'500 Quadratmetern neuer Nutzfläche. Das Gebäude ergänzt den Hauptsitz der Suter Technik AG und vereint Büroflächen, Lager, Entwicklungs- und Testräume unter einem Dach. Ab Ende 2025 sind die ersten Mietflächen bezugsbereit und bieten Unternehmen eine flexible Grundlage für Wachstum, moderne Arbeitsplätze und hochwertige Infrastruktur.


Die Bauherren
Hinter dem Projekt stehen Philippe und Etienne Bucher, Inhaber der Suter Technik AG. Das Familienunternehmen ist seit fast zwei Jahrzehnten auf Klima- und Wärmetechnik spezialisiert und bietet heute den kompletten Service von Entwicklung bis Unterhalt. Mit dem Neubau setzen die Brüder ein klares Bekenntnis zur Region Hochdorf und schaffen ein Umfeld, das moderne Arbeitswelten mit nachhaltigen Technologien verbindet.
Nachhaltigkeit und Technik
Nachhaltigkeit prägt das Projekt von Beginn an. Eine Photovoltaikanlage mit 240 hocheffizienten Modulen, modernste Wärmepumpentechnologie und effiziente Gebäudetechnik sorgen für eine ressourcenschonende Energieversorgung. Optional stehen Kühl- und Lüftungssysteme zur Verfügung, die den Komfort der Nutzer zusätzlich steigern. Der Gewerbepark verbindet damit Energieeffizienz mit Zukunftssicherheit und schafft eine ideale Arbeitsumgebung für Unternehmen, die auf Qualität und Nachhaltigkeit setzen.

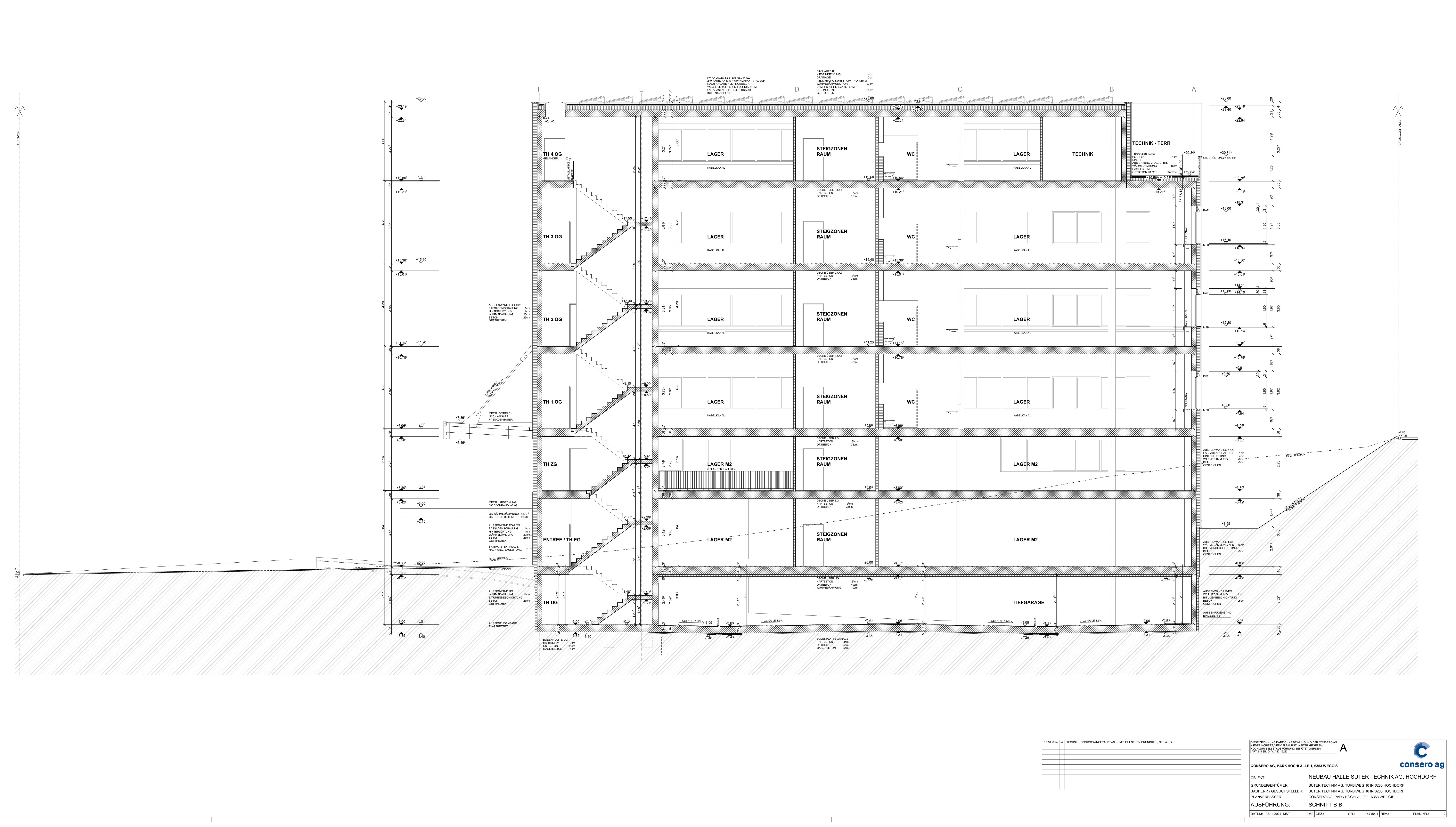
Pläne und Ansichten
Der Suter Gewerbepark überzeugt durch eine durchdachte Architektur und eine klare Gestaltung. Die folgenden Pläne geben einen Überblick über die Fassaden, den Gebäudeaufbau und die Umgebung mit Zufahrten, Rampen und Parkflächen.
Projektbeschrieb
Der Neubau am Turbiweg überzeugt durch moderne Architektur, helle Arbeitsräume und nachhaltige Gebäudetechnik. Photovoltaikanlage, Wärmepumpen, barrierefreier Zugang sowie Tiefgarage mit grosszügigen Parkmöglichkeiten sorgen für höchsten Komfort. Alle Mietflächen können nach individuellen Bedürfnissen ausgebaut werden.
Raumhöhen
Tiefgarage: 239 bis 261 cm
Erdgeschoss: 274 cm bis 654 cm
Zwischengeschoss: 274 cm
1. Obergeschoss: 378 cm
2. Obergeschoss: 381 cm
3. Obergeschoss: 381 cm
4. Obergeschoss: 324 cmFassadenbau
Moderne Fassade mit hochwertigen Materialien, optimal gedämmte Aussenhülle entsprechend aktuellen Energiestandards. Grosszügige Fensterflächen für optimale Belichtung der Arbeitsplätze.
Heizungsanlage
Nachhaltige Wärmeversorgung durch modernste Wärmepumpentechnologie der CoolStar AG. Effiziente Radiatorenheizung mit individueller Raumtemperaturregelung.
Optionale Kühlung & Lüftung
Auf Wunsch kann das Objekt mit einer energieeffizienten Klimatisierung oder einer zentralen Lüftungsanlage ausgestattet werden.
Energieversorgung / Photovoltaikanlage
Das Gebäude ist mit einer leistungsstarken Photovoltaikanlage ausgestattet. Die Anlage umfasst 240 hocheffiziente PV-Module auf der Dachfläche und trägt massgeblich zur nachhaltigen Energieversorgung des Gebäudes bei.
Personenaufzug
Der Personenaufzug ist für 8 Personen ausgelegt und hat eine Nutzlast von 630 kg.
Warenaufzug
Der Warenaufzug ist als Lastaufzug für den Gütertransport konzipiert und kann Lasten bis zu 1’500 kg befördern. Beide Aufzüge sind rampenlos an alle Geschosse inklusive Tiefgarage angeschlossen.
Ausstattung
Die Innenausstattung erfolgt nach Mieterwunsch und ermöglicht eine individuelle Gestaltung der Flächen entsprechend den spezifischen Nutzungsanforderungen.
Parkplätze
Parkplätze stehen in der Tiefgarage sowie im Aussenbereich zur Verfügung. Die Details sind auf der Seite Mietflächen ersichtlich.
Mietflächen
Ihre Chance in Hochdorf
Der Gewerbepark bietet flexible Büro- und Gewerbeflächen von kompakten Einheiten ab 100 m² bis zu kompletten Geschossen mit über 1'100 m². Alle Flächen können individuell konfiguriert und nach den Bedürfnissen der Mieter ausgebaut werden.
