Mietflächen

Flexible Raum­lö­sun­gen für jede Unter­nehmens­grösse.

Flexible Büro- und Gewerbeflächen ab 100 m² bis über 1‘100 m². Individuell ausbaubar, modern ausgestattet und nachhaltig im Betrieb.

Flächenangebot im Überblick

Es stehen flexible Mietflächen zur Verfügung, die sich für unterschiedlichste Nutzungen eignen. Vom Erdgeschoss mit Lager- und Gewerbeflächen bis zu großzügigen Büroetagen im Obergeschoss bietet der Gewerbepark Raum für jede Anforderung.

Beispielflächen Grundrisspläne

Ergeschoss
Mietfläche 01 585.12 m²
Ergeschoss
Mietfläche 03 579.47 m²
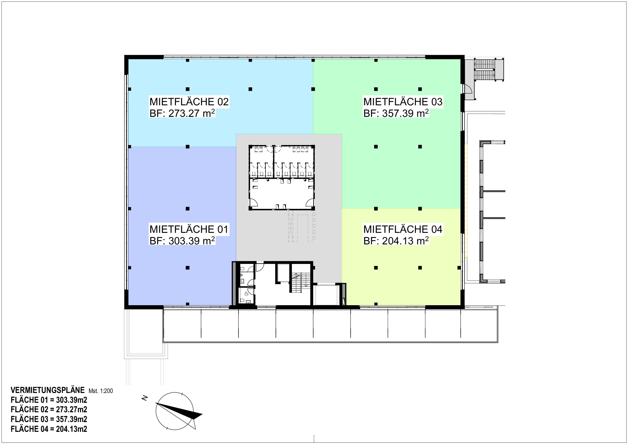
1. Obergeschoss
Mietfläche 01 303.39 m²
Mietfläche 02 273.27 m²
Mietfläche 03 357.39 m²
Mietfläche 04 204.13 m²
2. Obergeschoss
Mietfläche 01 303.39 m²
Mietfläche 02 273.27 m²
Mietfläche 03 357.39 m²
Mietfläche 04 204.13 m²
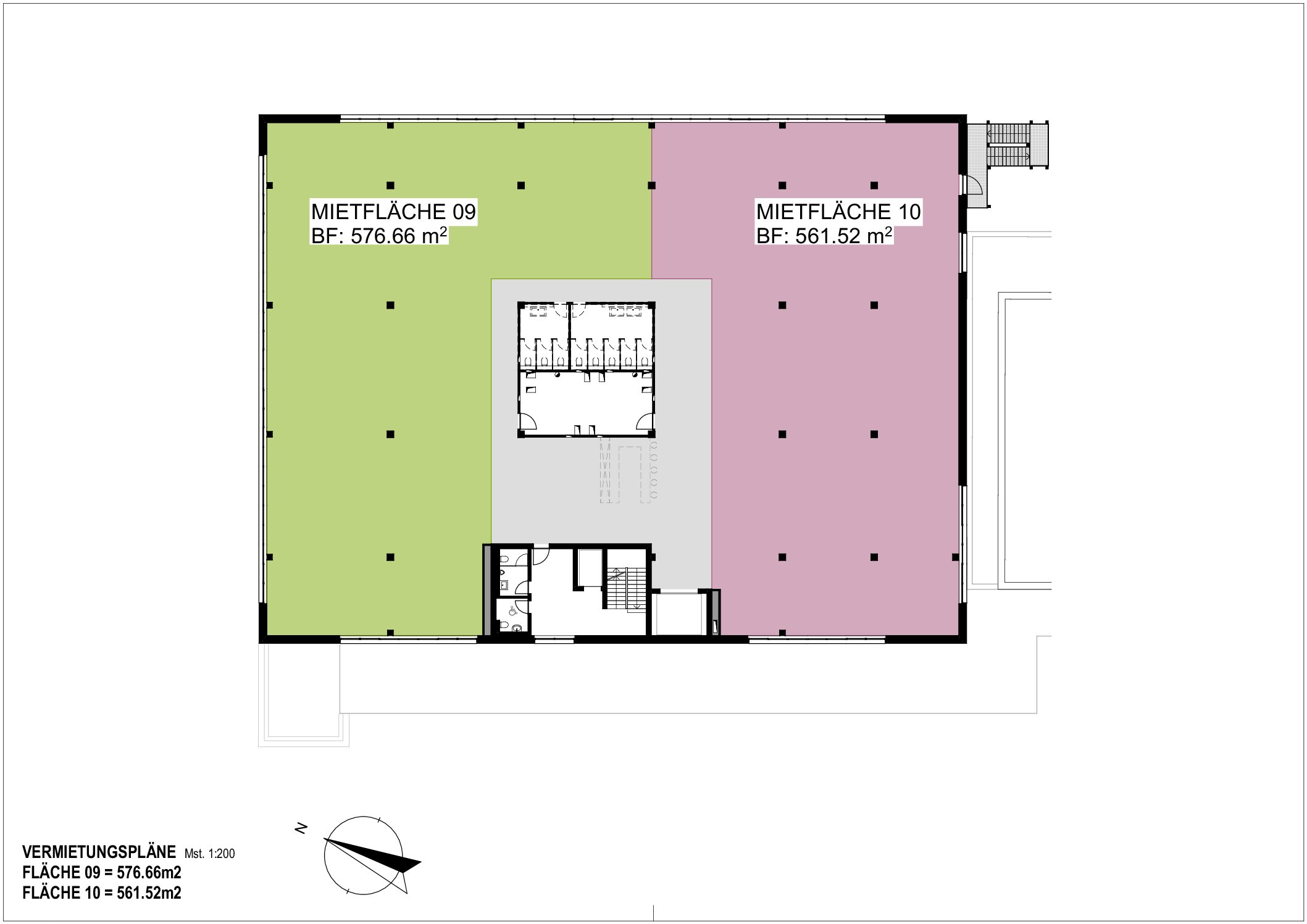
3. Obergeschoss
Mietfläche 09 576.66 m²
Mietfläche 10 561.52 m²
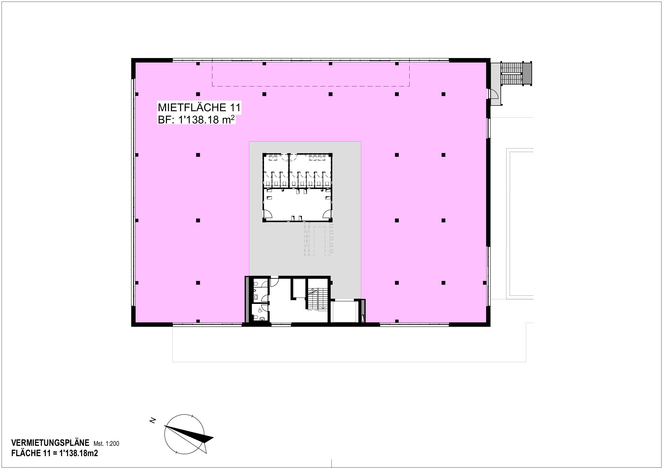
4. Obergeschoss
Mietfläche 11 1'138.18 m²

Mietpreise und Konditionen

Die Flächen werden im Edelrohbau vermietet und ermöglichen so maximale Freiheit bei der Gestaltung. Die Mietpreise sind transparent gestaffelt: Je größer die Fläche, desto attraktiver der Quadratmeterpreis.

Preisstruktur

  • Kompakte Einheitenab CHF 200.– pro m²/Jahr
    ab 100 m²
  • Erweiterte Flächenab CHF 190.– pro m²/Jahr
    ab 200 m²
  • Komfortable Büroflächenab CHF 190.– pro m²/Jahr
    ab 300 m²
  • Grosszügige Arbeitsplätzeab CHF 190.– pro m²/Jahr
    ab 400 m²
  • Repräsentative Flächenab CHF 180.– pro m²/Jahr
    ab 500 m²
  • Premium-Einheitenab CHF 180.– pro m²/Jahr
    ab 600 m²
  • Exklusive Grossflächenab CHF 170.– pro m²/Jahr
    ab 700 m²
  • Komplette Geschossanmietungab CHF 160.– pro m²/Jahr
    1'138 m²

Mietkonditionen Edelrohbau

Mietkonditionen Edelrohbau: CHF 160.– bis 200.–/m² zzgl. Nebenkosten CHF 20.–/m² (ohne Innenausbau, individueller Ausbau auf Mieterwunsch möglich).

Ausbauoptionen

Auf Wunsch kann der Mieter eine Ausbauplanung für seine Mietflächen gegen gesonderte Vergütung beauftragen. Optional besteht die Möglichkeit einer Vermieterfinanzierung des Mieterausbaus über eine entsprechend erhöhte Miete (inklusive individuellem Mieterausbau).

Mietbedingungen

Parking

Tiefgarage mit komfortabler Zufahrt

Im Zuge des Neubaus wurde eine hochmoderne Tiefgarage mit zeitgemässer Ausstattung realisiert, die höchsten Komfort und Funktionalität bietet. Die besonders breit konzipierte Einfahrt verfügt über eine grosszügige Einfahrtshöhe.

Dank der schwellenlosen Ausführung ohne störende Randsteine oder Absätze ist die Einfahrt ausserordentlich komfortabel und sicher – sowohl für Personenwagen aller Grössen wie auch für Lieferwagen und andere Nutzfahrzeuge. Der praktische direkte Zugang ins Gebäude erfolgt bequem ebenerdig über die Ebene 0, was einen vollständig barrierefreien und witterungsgeschützten Übergang zwischen Tiefgarage und Gebäude ermöglicht.

Für Besucher und Gäste stehen zusätzliche Parkmöglichkeiten im gepflegten Aussenbereich zur Verfügung.

Ein Stellplatz ist ab CHF 1‘800.– pro Jahr (CHF 150.– pro Monat) erhältlich.

Parkhaus Suter Gewerbepark

Starten Sie durch in Hochdorf

Jetzt die passende Mietfläche sichern

Gestalten Sie Ihre neue Arbeitsumgebung im Suter Gewerbepark Hochdorf. Fordern Sie unverbindlich weitere Informationen an oder vereinbaren Sie einen Besichtigungstermin.

Büros Suter Gewerbepark